Contact:
Arne Peters
Public Relations
Phone: +49 511 61 03-192
presse@aucotec.com

40 years of Aucotec
From Software Pioneer to Digital Nervous System for Industry
Learn more
CIRED 2025
Aucotec to present the world's first full integration of IEC 61850 in Engineering Base
Learn more
© Westfalen AG
Major efficiency driver
Westfalen Group Future-Proofs Its Processes with Aucotec
Learn more
© Aker BP ASA
New Partnership
Aker BP Selects Aucotec to Drive Operational Efficiency in Yggdrasil
Learn more
Aucotec at InnoTrans 2024
Solutions for Development, Maintenance and Operation Start-up
Learn more
CIGRE 2024
Aucotec blazes a trail by bridging the worlds of hardware and software
Learn more
Aucotec personnel news
Dr. Florian Jurecka takes over as new Vice President Global Sales and Marketing
Learn more

Aucotec at ACHEMA 2024
Efficient, sustainable solutions through cooperative engineering
Learn more
© Sunfire GmbH
Accelerating the future of hydrogen together
Sunfire decision for Aucotec's Engineering Base: key to more efficiency
Learn more
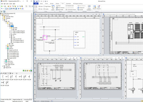
Substations according to IEC 61850 made easy
First full integration of control definition into engineering seamlessly links hardware and software worlds
Learn more
Project Builder automates plant configuration
New tool in Engineering Base alleviates skills shortage
Learn more
IEC 61850: Planning Substations for the Future
Aucotec presents the only system that fully implements the standard at CIRED
Learn more
35 percent more orders
Digitalization and decarbonization bring Aucotec record results
Learn more
Change? To be sure!
More control, consistency and efficiency for engineering changes
Learn more
On-board power supply planning made easy
Data-centred engineering allows analysis and simple plan generation via clicks
Learn more
One system for the whole life of the substation
Aucotec at Cigre 22: Standard-compliant engineering from single line to maintenance
Learn more
More subsidiaries, more experts
Strong figures despite global crises - Aucotec continues to expand
Learn more
Describing substations more efficiently
Manufacturer-neutral communication in accordance with IEC 61850
Learn more![[Translate to English:] [Translate to English:]](/fileadmin/_processed_/1/9/csm_Bremssystem_Knorr-Bremse_e6dc058246.jpg)
© Knorr-Bremse AG
Brake experts focus on acceleration
Knorr-Bremse opts for networked, modular engineering with Aucotec
Learn more
Better service for servicing
Seamless connection of engineering and asset management
Learn more

